Công Ty Cổ Phần Kiến Trúc Và Xây Dựng Green House Việt Nam được hình thành 2005, kể từ khi thành lập đến nay công ty đã và đang THIẾT KẾ - THI CÔNG - GIÁM SÁT xây dựng nhiều công trình nhà phố, biệt thự, công trình công cộng ở khắp các tỉnh thành tại Việt Nam. Với chi phí cạnh tranh, dịch vụ tốt, uy tín, GREEN HOUSE VIỆT NAM đã và đang làm hài lòng rất nhiều khách hàng khó tính, có kỹ thuật, hiểu về công việc xây dựng.
Đến với công ty kiến trúc Green House Việt Nam , khách hàng sẽ gặp được người bạn và đối tác chân thành, có được những công trình đạt chất lượng tốt, bền vững, với giá cả hợp lý và giá trị thẩm mỹ cao. Hơn nữa, đội ngũ thiết kế và thi công của Green House Việt Nam được đánh giá cực kỳ chuyên nghiệp với kỹ năng chuyên đi sâu trong việc nghiên cứu thiết kế những mẫu nhà phù hợp với với từng phong cách của khách hàng. Các kỹ sư – giám sát giàu kinh nghiệm, làm hài lòng khách hàng khó tính nhất về kỹ thuật và chuyên môn.
DỰ ÁN : BẾN XE KHÁCH KẾT HỢP KINH DOANH DỊCH VỤ TỔNG HỢP TÂN MỸ - BẮC GIANG
Công ty kiến trúc Green House Việt Nam hiện là đơn vị đi tiên phong trong lĩnh vực thiết kế công trình công cộng tại Bắc Giang và các tỉnh thành lân cận. Trao niềm tin cho Green House Việt nam khách hàng sẽ nhận lại được sự an tâm về chất lượng công trình và chính sách bảo hành, bảo trì công trình sau thi công. Mới đây, Green House Việt Nam đã trình làng bản thiết kế bến xe khách kết hợp kinh doanh dịch vụ tổng hợp Tân Mỹ - Bắc Giang. Ý tưởng được thể hiện qua bản vẽ 3D và phối cảnh thực tế giúp khách hàng hình dung được đến từng chi tiết, khách hàng có cảm nhận gần và thật nhất với công trình thiết kế.
Đây là dự án đầu tư có sử dụng đất với tổng diện tích 4,5 ha, tổng chi phí thực hiện dự kiến 126,835 tỷ đồng. Dự án được thực hiện trong thời gian 24 tháng. Mục tiêu của Dự án là đầu tư xây dựng, khai thác bến xe khách kết hợp kinh doanh dịch vụ tổng hợp tại phía Tây TP. Bắc Giang. Các hạng mục chính gồm: Bến xe và các công trình thương mại, dịch vụ phụ trợ.

Thiết kế bến xe khách kết hợp kinh doanh dịch vụ tổng hợp Tân Mỹ - Bắc Giang
⇒ Xem thêm : Mẫu thiết kế nội thất nhà phố hiện đại tại TP. Hồ Chí Minh - CĐT Chị Nga
CHIÊM NGƯỠNG BẢN VẼ DỰ ÁN BẾN XE KHÁCH KẾT HỢP KINH DOANH DỊCH VỤ TỔNG HỢP TÂN MỸ - BẮC GIANG
Thiết kế kết cấu kiến trúc cho công trình công cộng là công đoạn rất quan trọng giúp hình thành diện mạo của công trình. Công đoạn này bao gồm thiết kế kiến trúc, kết cấu tổng thể, cách bày trí không gian, bố trí hệ thống điện tử – điện lạnh, hệ thống cấp thoát nước, hút mùi thông gió…
Thiết kế công trình công cộng cần phải đảm bảo được những yếu tố như tính đúng đắn khi thi công xây dựng; công trình có thể tối ưu hóa công năng sử dụng; đảm bảo được an toàn trong thi công và sử dụng đặc biệt là phải thể hiện được hết từng hạng mục để giám sát thi công.

Dự án bến xe khách góp phần quan trọng vào quá trình phát triển của tỉnh Bắc Giang
Thiết kế tổ hợp công trình dịch vụ bao gồm: Bến xe trung tâm là bến xe thành phố phục vụ nhu cầu đi lại của người dân khu vực. Khu dịch vụ tổng hợp: Khai thác dịch vụ phục vụ cho khách đi và đến khu vực qua điểm chung chuyển chính là bến xe, ngoài ra khu dịch vụ là khu trung tâm thương mại phục vụ nhu cầu mua sắm và vui chơi giải trí của người dân thành phố. Khu cây xăng phục vụ cho xe khách đến và đi, ngoài ra cung cấp xăng cho giao thông vận tải khu vực. Khối điều hành dịch vụ.

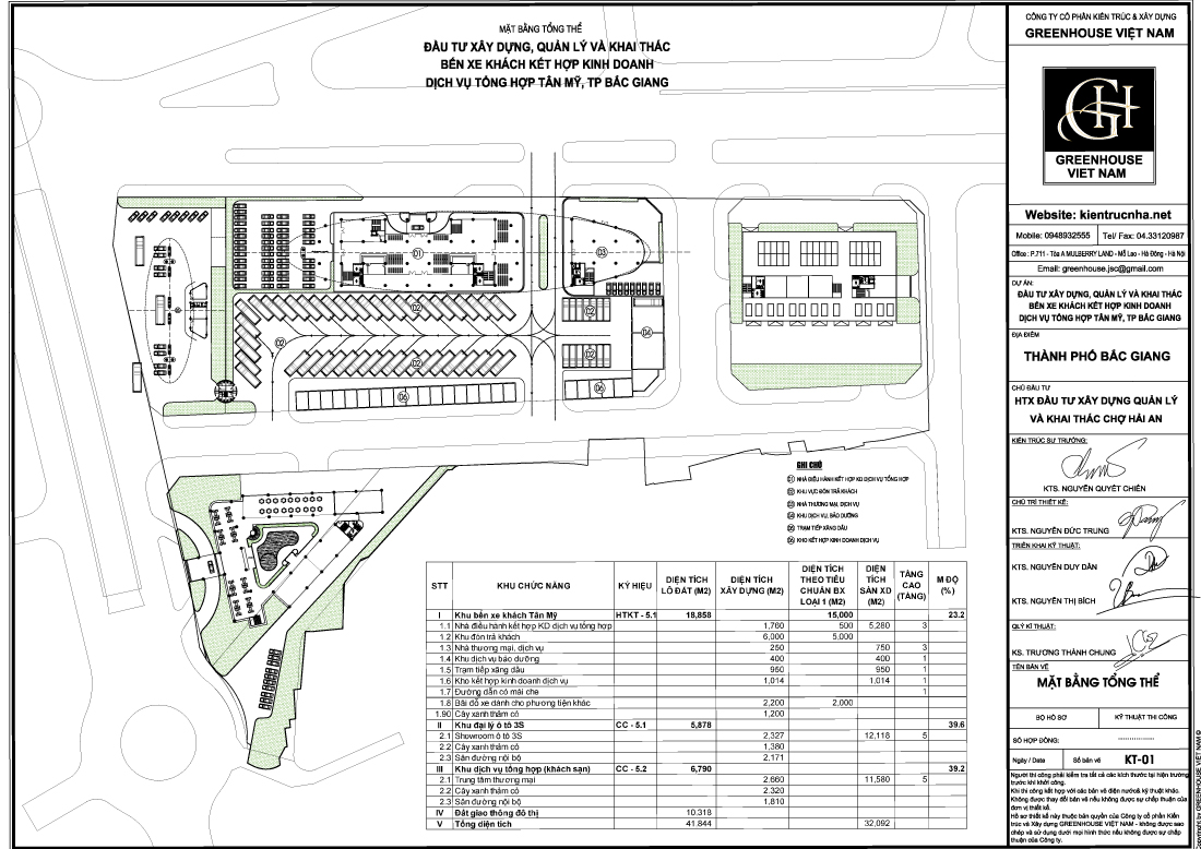
Dự kiến các thông số thiết kế chính của dự án

Giải pháp thiết kế dự án bến xe khách kết hợp dịch vụ tổng hợp

Mặt bằng tổng thể dự án đầu tư xây dựng và quản lý khai thác bến xa khách Tân Mỹ

Hình ảnh khu bến xe khách Tân Mỹ - Bắc Giang

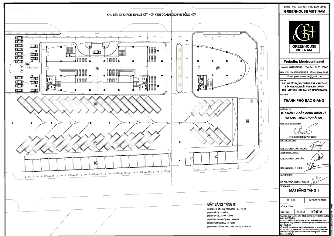
Mặt bằng tầng 1 khu bến xe khách Tân Mỹ

Mặt bằng tầng 2 và tầng 3 khu bến xe khách Tân Mỹ
Nhìn vào tổng thể công trình được thiết kế theo phong cách hiện đại, sử dụng các vật liệu hiện đại. Mặt tiền khối dịch vụ được ốp gạch kết hợp các mảng kính lớn có nan chớp chắn nắng và trang trí. Xung quanh công trình thiết kế các cột làm khối lồi kết hợp khối kính lõm làm công trình rất khỏe, hiện đại và sang trọng. Khối nhà để xe có thiết kế khẩu độ lớn, sử dụng hệ khung thép vượt nhịp lớn, tuy nghiên hình thức công trình cũng được chau chuốt kỹ, vẫn là phong cách thiết kế hiện đại, phù hợp với kiến trúc của các khối dịch vụ xung quanh xong vẫn đảm bảo về công năng sử dụng. Khối cây xăng nằm ở vị trí điểm nhìn của 2 trục đường lớn, với phong cách thiết kế hiện đại, đơn giản, thực sự là điểm nhấn của tổng thê tổ hợp công trình cùng như điểm nhấn của 2 tuyến đường chính.

Hình ảnh 3D Bến xe khách Hải An - Thành phố Bắc Giang

Toàn cảnh dự án Bến xe khách kết hợp kinh doanh dịch vụ tổng hợp Tân Mỹ - Bắc Giang

Toàn cảnh dự án Bến xe khách kết hợp kinh doanh dịch vụ tổng hợp Tân Mỹ - Bắc Giang

Mặt bằng tổng thể trạm tiếp xăng dầu

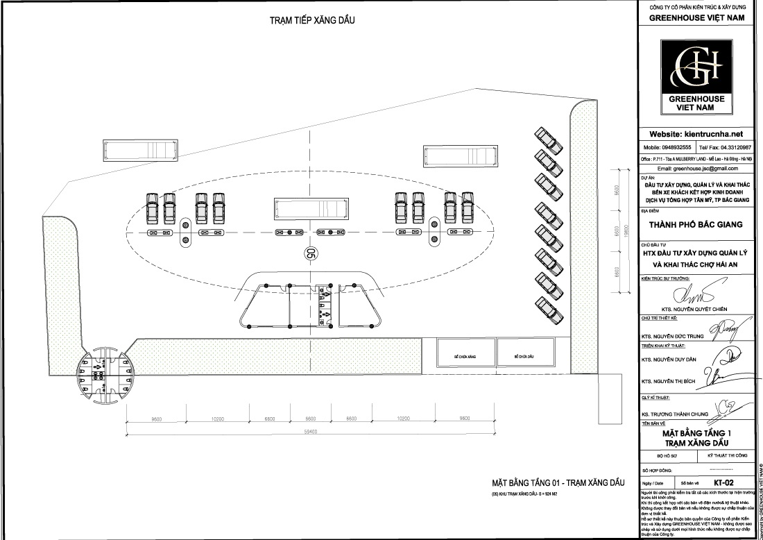
Mặt bằng tầng 1 Trạm tiếp xăng dầu

Hình ảnh 3D trạm tiếp xăng dầu tại Bến xe khách Tân Mỹ

Khu dịch vụ tổng hợp ( khách sạn )

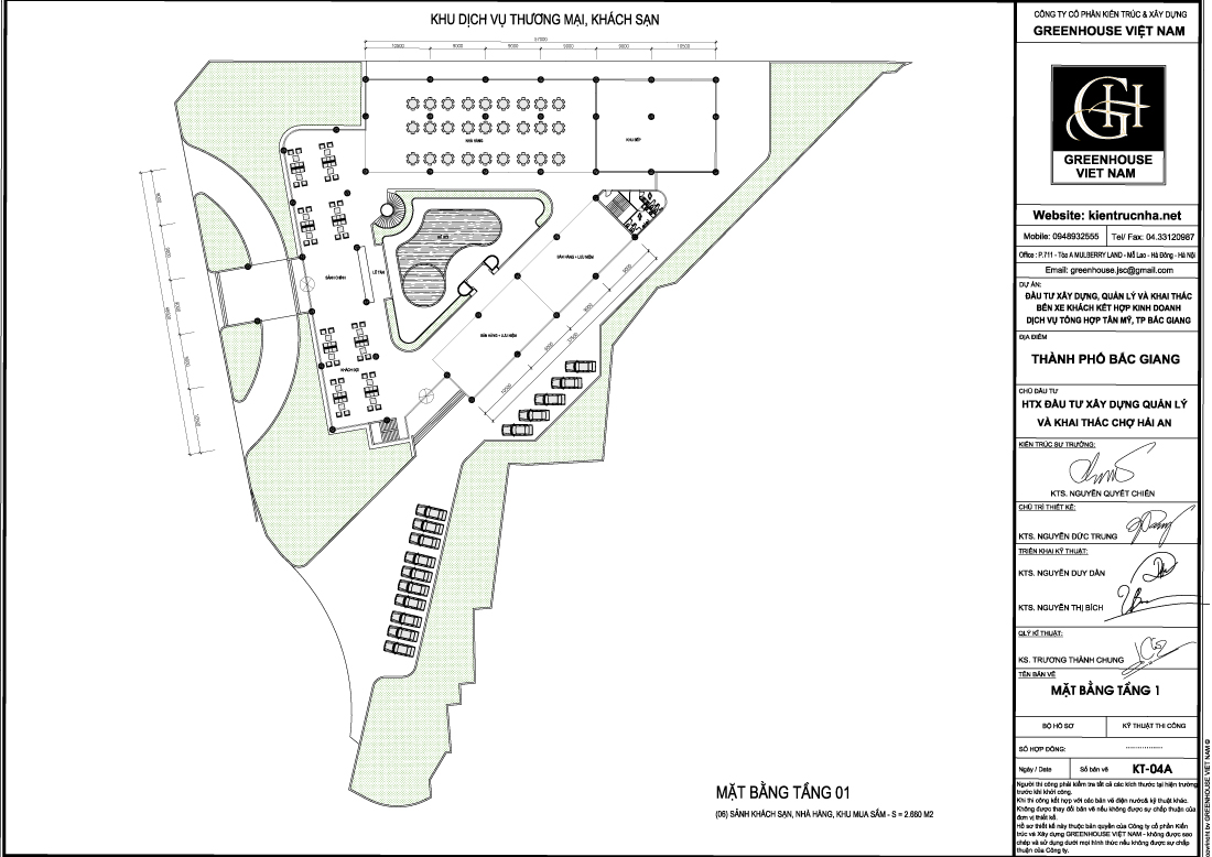
Mặt bằng tầng 1 Khu dịch vụ tổng hợp ( khách sạn )

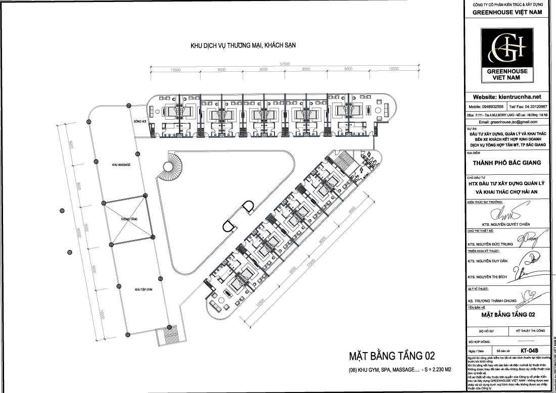
Mặt bằng tầng 2 Khu dịch vụ thương mại khách sạn

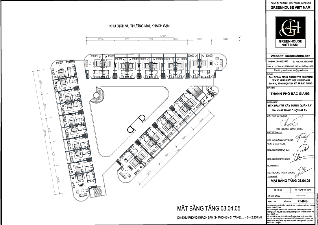
Mặt bằng tầng 3,4,5 Khu dịch vụ thương mại khách sạn

Hình ảnh 3D khu dịch vụ thương mại khách sạn

Khách sạn Hải An - Thành phố Bắc Giang

Khu kinh doanh dịch vụ - Đại lý ô tô 3S

Mặt bằng tầng 1 Khu kinh doanh dịch vụ - Đại lý ô tô 3S

Mặt bằng tầng 2 Khu kinh doanh dịch vụ - Đại lý ô tô 3S

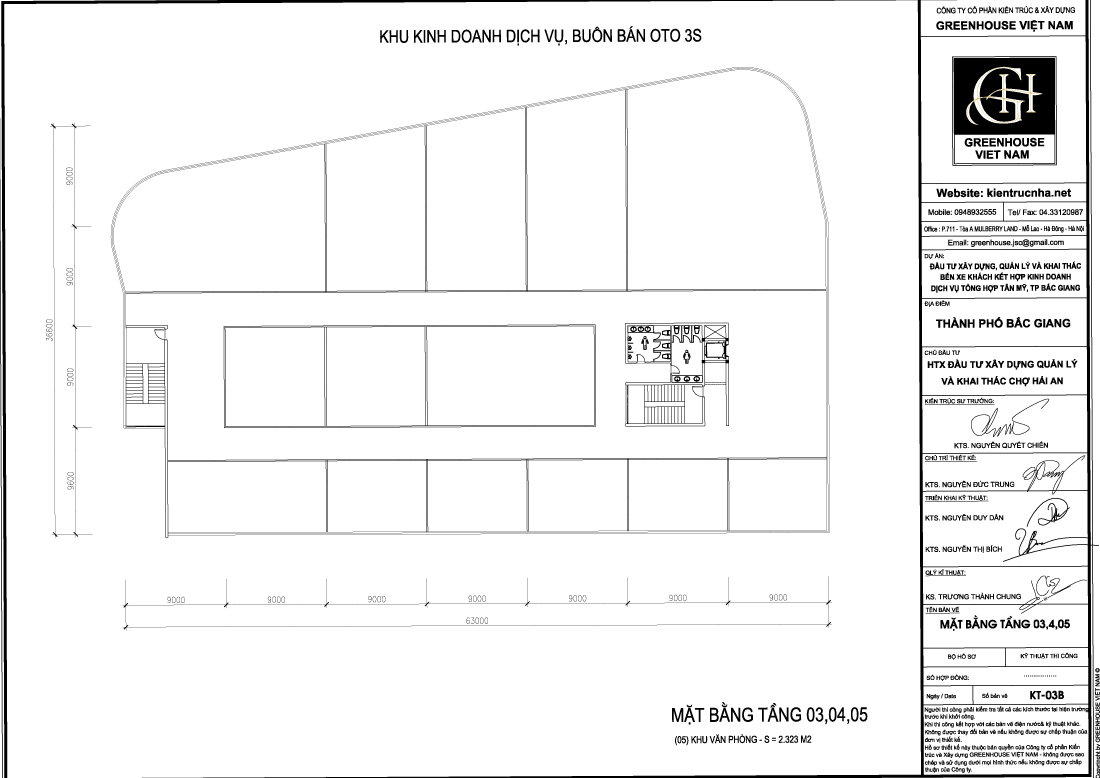
Mặt bằng tầng 3,4,5 Khu kinh doanh dịch vụ - Đại lý ô tô 3S

Hình ảnh 3D Khu kinh doanh dịch vụ - Đại lý ô tô 3S

Hình ảnh 3D Khu kinh doanh dịch vụ - Đại lý ô tô 3S
THIẾT KẾ MẶT BẰNG DỰ ÁN BẾN XE KHÁCH KẾT HỢP KINH DOANH DỊCH VỤ TỔNG HỢP TÂN MỸ - BẮC GIANG
.jpg)
Mặt bằng tổng thể Bến xe khách kết hợp kinh doanh dịch vụ tổng hợp Tân Mỹ - Bắc Giang

Mặt bằng khu Bến xe khách kết hợp kinh doanh dịch vụ tổng hợp

Mặt bằng tầng 2 và 3 khu Bến xe khách kết hợp kinh doanh dịch vụ tổng hợp

Mặt đứng công trình khu Bến xe khách kết hợp kinh doanh dịch vụ tổng hợp

Mặt bằng tầng 1 trạm tiếp xăng dầu khu Bến xe khách kết hợp kinh doanh dịch vụ tổng hợp

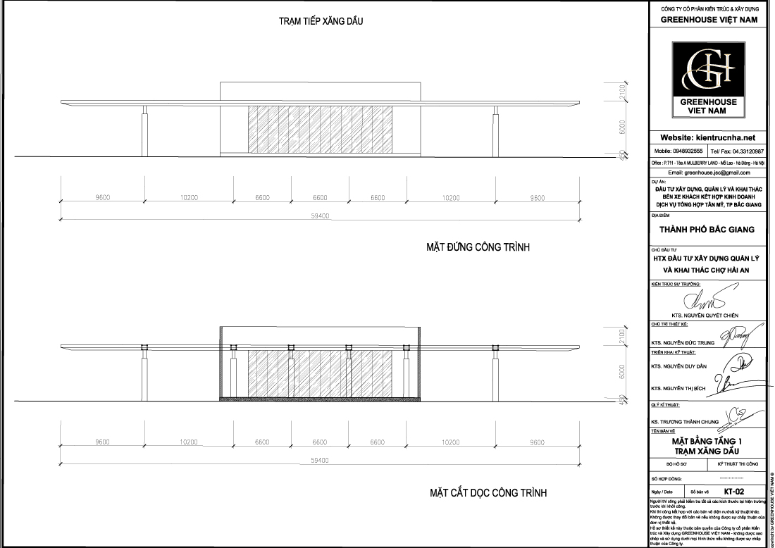
Mặt đứng công trình trạm xăng dầu khu Bến xe khách kết hợp kinh doanh dịch vụ tổng hợp

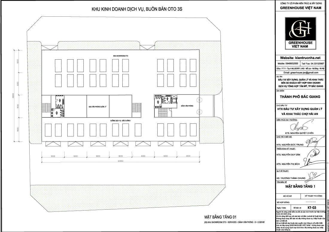
Mặt bằng tầng 1 khu kinh doanh dịch vụ, buôn bán ô tô 3S

Mặt bằng tầng 2 khu kinh doanh dịch vụ, buôn bán ô tô 3S

Mặt bằng tầng 3,4,5 khu kinh doanh dịch vụ, buôn bán ô tô 3S

Mặt đứng công trình khu kinh doanh dịch vụ, buôn bán ô tô 3S

Mặt bằng tầng 1 khu dịch vụ thương mại, khách sạn

Mặt bằng tầng 2 khu dịch vụ thương mại, khách sạn

Mặt bằng tầng 3,4,5 khu dịch vụ thương mại, khách sạn

Mặt đứng công trình khu dịch vụ thương mại, khách sạn
⇒ Xem thêm : Mẫu thiết kế nội thất nhà phố tân cổ điển 5 tầng sang trọng tại Hà Nội
Có thể nói dự án Bến xe khách kết hợp kinh doanh dịch vụ tổng hợp Tân Mỹ - Bắc Giang đã thể hiện được tài năng cùng sự chuyên nghiệp trong quy trình làm việc của đội ngũ kiến trúc sư Green House Việt Nam. Công trình là tâm huyết, là sự nỗ lực và cả sự sáng tạo khi thành công kiến tạo nên không gian sang trọng, đẳng cấp cho khách hàng. Với năng lực chuyên môn và kinh nghiệm thực tế, Green House Việt Nam tự hào là một trong những đơn vị uy tín trong lĩnh vực thiết kế, thi công các công trình quy mô vừa và lớn. Với phương châm “Kết nối không gian – Sáng tạo cuộc sống”, những công trình của Green House Việt Nam ngày càng phủ sóng rộng rãi trên khắp toàn quốc, mang đến không gian sống lý tưởng và đẳng cấp cho mọi khách hàng.




